Search

Location

Sale

House Six-bedroom (7+kk) Prague 5, Stodůlky, Ke Koh-i-nooru

  • € 1 488 391
  • Total area

    300 m²

  • Balcony

    17 m²

  • Plot

    425 m²

House, Six-bedroom (7+kk)

This newly built, very spacious and technologically advanced energy-efficient family house (half of a semi-detached house) with 6 bedrooms, a double garage, and a flat irrigated garden was recently completed on a side street in Prague 5 - Stodůlky, close to complete amenities and several forest parks.

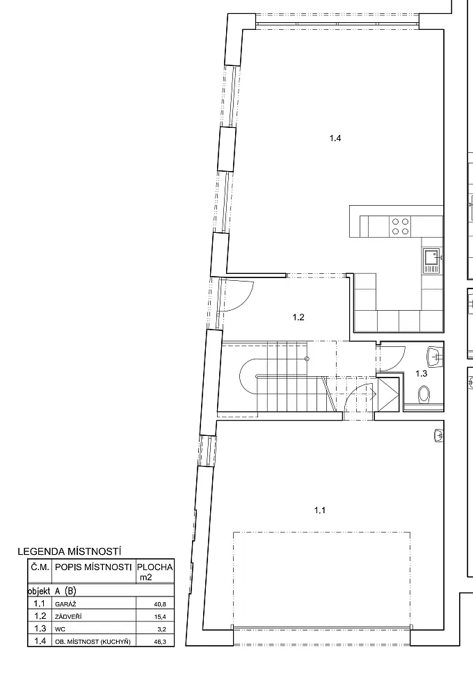
The ground floor is designed as an open living space with a preparation for a kitchen and access to the garden. It also includes a toilet, an entrance hall with direct access from the garage, and a staircase leading to the upper floors. On the first floor is a master bedroom with an en-suite bathroom and a walk-in closet, two additional bedrooms, a bathroom, and a hallway with space for built-in wardrobes. The second floor features three more bedrooms, a bathroom, a spacious hallway, and a utility room. The largest bedroom has access to a south-facing terrace.  

The ground floor is designed as an open living space with a preparation for a kitchen and access to the garden. It also includes a toilet, an entrance hall with direct access from the garage, and a staircase leading to the upper floors. On the first floor is a master bedroom with an en-suite bathroom and a walk-in closet, two additional bedrooms, a bathroom, and a hallway with space for built-in wardrobes. The second floor features three more bedrooms, a bathroom, a spacious hallway, and a utility room. The largest bedroom has access to a south-facing terrace.  

The high-quality standard includes air-conditioning, heat recovery ventilation, aluminum windows with triple glazing and electric aluminum exterior blinds, wooden floors, large-format Italian tiles in the bathrooms and hallways, brand-name sanitary ware, a video intercom, a security system, underfloor heating connected to a heat pump (with additional heated towel rails in the bathrooms), a Somfy smart home system, a camera system, an automatic garden irrigation system, a rainwater retention tank, an electric car charger, and a full preparation for a central vacuum system. Convenient parking is provided not only by a double garage but also by a paved area on the property for an additional 2–3 cars. The building meets the criteria of an energy-efficient house (Energy Performance Certificate B).  

The location offers everything needed for a comfortable lifestyle – nearby shops, including supermarkets, restaurants, public and private preschools and elementary schools, several international schools (Japanese, French, German, and English), a high school, secondary schools, and a dance conservatory, as well as a clinic and a post office. The area is full of children's playgrounds, with forest parks featuring walking and bike trails just a short distance away, and a golf course is nearby. Excellent transport connections include trams, a bus that reaches the Motol metro station in just 3 minutes, and easy access by car to the Prague Ring Road.  

Usable area 299.5 m² (including a 40.8 m² garage and a 17.1 m² terrace), plot 425 m².

Continue reading

Facilities

  • Air-conditioning
  • Recuperation
  • Security system
  • Parking
  • Garden
  • Garage
  • Front window blinds

Floor plan

Overview table

  • Reference number

    105243
  • Selling price

    € 1 488 391
  • Floor area

    241,6 m²
  • Balcony

    17,1 m²
  • Garage

    Yes
  • Total area

    299,5 m²
  • Built-up area

    134 m²
  • Garden

    291 m²
  • Plot

    425 m²
  • Parking

    Yes
  • Cellar

    -
  • Building Energy Rating

    B
  • Download

Contact us

See other projects in the area Capital City of Prague

The data presented in this listing is purely informative in nature and as such does not give rise to anyone’s entitlement to a contract based on this offer. Svoboda & Williams Slovakia s.r.o. mediates the information gained in good faith from the owner of the property and therefore bears no responsibility for its completeness or accuracy.